Product Description
Stacker reclaimer chain is widely used in mines, power plants, coal yards, etc.for stacking and conveying all kinds of granular materials, metal raw ore materials, etc.
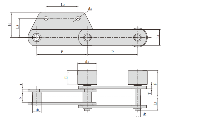
Typical product structure and features:
1. Large roller chain: simple structure and good wear resistance;
2. Extemal roller chain: low noise, with the performance advantages of large roller chain.
Parameter

| Chain No. | Pitch | Roller diameter | Width between inner plates | Pin diameter | Pin length | Plate depth | Plate thickness | Tensile strength | Average tensile strength |
| P | d1 max | b1 max | d2 max | Lc max | h2 | T | Q min | Q0 | |
| mm | mm | mm | mm | mm | mm | mm | kN/lbf | kN | |
| P250F74 | 250.0 | 76.5 | 40.0 | 24.0 | 117.0 | 60.0 | 12.0 | 400/89983 | 450.0 |
| P315F11 | 315.0 | 100.0 | 52.0 | 35.0 | 148.0 | 85.0 | 16.0 | 800/179966 | 900.0 |
| Chain No. | P | L1 | G | F | W | h4 | d4 |
| mm | mm | mm | mm | mm | mm | mm | |
| P250F74 | 250.0 | 100.0 | 160.0 | 83.5 | 111.5 | 149.0 | 21.0 |
| P315F11 | 315.0 | 130.0 | 190.0 | 100.0 | 130.0 | 140.0 | 25.0 |

| Chain No. | L1 | G | d4 | h4 | F | W |
| mm | mm | mm | mm | mm | mm | |
| P250F61 | 130.0 | 185.0 | 21.0 | 110.0 | 70.0 | 105.0 |
| Chain No. | Pitch | Width between outer plates | Pin diameter | Pin length | Plate depth | Plate thickness | Tensile strength | Average tensile strength |
| P | b1 | d2 | Lc | h2 | T | Q min | Q0 | |
| mm | mm | mm | mm | mm | mm | kN/lbf | kN | |
| P250F61 | 250.0 | 40.0 | 35.0 | 91.0 | 70.0 | 10.0 | 400/89983 | 450.0 |
| Chain No. | Pitch | Roller diameter | Width between inner plates | Pin diameter | Pin length | Plate depth | Plate thickness | Attachment dimension | Tensile strength | Average tensile strength | |||
| P | d1 max | b1 min | d2 max | L max | h2 max | t/T | H | L1 | L2 | d4 | Q min | Q0 | |
| mm | mm | mm | mm | mm | mm | mm | mm | mm | mm | mm | kN/lbf | kN | |
| P500F4 | 500.0 | 150.0 | 120.0 | 50.0 | 227.0 | 130.0 | 20.0 | 155.0 | 400.0 | 120.0 | 26.0 | 2650/595720 | 2915.0 |
| P500F5 | 500.0 | 150.0 | 120.0 | 50.0 | 227.0 | 120.0 | 20.0 | 155.0 | 400.0 | 120.0 | 26.0 | 2650/595720 | 2915.0 |
| P500F9 | 500.0 | 150.0 | 120.0 | 55.0 | 227.0 | 140.0 | 20.0 | 155.0 | 400.0 | 120.0 | 32.0 | 2800/629440 | 3080.0 |
| P500F10 | 500.0 | 150.0 | 120.0 | 50.0 | 219.0 | 120.0 | 18.0 | 155.0 | 400.0 | 120.0 | 26.0 | 1500/337200 | 1650.0 |

| Chain No. | Pitch | Roller diameter | Width between inner plates | Pin diameter | Pin length | Plate depth | Plate thickness | Tensile strength | Average tensile strength |
| P | d1 max | b1 min | d2 max | L1 max | h2 max | t/T | Q min | Q0 | |
| mm | mm | mm | mm | mm | mm | mm | kN/lbf | kN | |
| P315F23 | 315.0 | 55.0 | 66.0 | 35.0 | 78.0 | 100.0 | 14.0 | 800/179840 | 880.0 |
| P315F36 | 315.0 | 56.0 | 65.0 | 35.0 | 75.0 | 90.0 | 14.0 | 800/179840 | 880.0 |
| P315F39 | 315.0 | 80.0 | 75.0 | 42.0 | 80.5 | 100.0 | 16.0/14.0 | 1100/24728 | 1210.0 |
| P315F30SR1 | 315.0 | 55.0 | 60.0 | 30.0 | 63.5 | 90.0 | 12.0 | 630/141624 | 693.0 |
| P400F14 | 400.0 | 63.0 | 90.0 | 40.0 | 92.5 | 100.0 | 16.0 | 1300/292240 | 1430.0 |
| P400F15 | 400.0 | 75.0 | 130.0 | 50.0 | 120.5 | 130.0 | 18.0 | 1700/382160 | 1870.0 |
| P500F8 | 500.0 | 70.0 | 124.0 | 50.0 | 118.8 | 120.0 | 16.0 | 1500/337200 | 1650.0 |

| Chain No. | Pitch | Roller diameter | Width between inner plates | Pin diameter | Pin length | Plate depth | Plate thickness | Tensile strength | Average tensile strength |
| P | d1 max | b1 min | d2 max | L1 max | h2 max | t/T | Q min | Q0 | |
| mm | mm | mm | mm | mm | mm | mm | kN/lbf | kN | |
| P315F23 | 315.0 | 55.0 | 66.0 | 35.0 | 78.0 | 100.0 | 14.0 | 800/179840 | 880.0 |
| P315F36 | 315.0 | 56.0 | 65.0 | 35.0 | 75.0 | 90.0 | 14.0 | 800/179840 | 880.0 |
| P315F39 | 315.0 | 80.0 | 75.0 | 42.0 | 80.5 | 100.0 | 16.0/14.0 | 1100/24728 | 1210.0 |
| P315F30SR1 | 315.0 | 55.0 | 60.0 | 30.0 | 63.5 | 90.0 | 12.0 | 630/141624 | 693.0 |
| P400F14 | 400.0 | 63.0 | 90.0 | 40.0 | 92.5 | 100.0 | 16.0 | 1300/292240 | 1430.0 |
| P400F15 | 400.0 | 75.0 | 130.0 | 50.0 | 120.5 | 130.0 | 18.0 | 1700/382160 | 1870.0 |
| P500F8 | 500.0 | 70.0 | 124.0 | 50.0 | 118.8 | 120.0 | 16.0 | 1500/337200 | 1650.0 |
| Chain No. | H | L2 | L3 | d4 | F | E | d3 |
| mm | mm | mm | mm | mm | mm | mm | |
| P315F23 | 155.0 | 200.0 | 120.0 | 25.0 | 163.0 | 90.0 | 120.0 |
| P315F36 | 155.0 | 280.0 | 120.0 | 25.0 | 163.0 | 90.0 | 120.0 |
| P315F39 | 250.0 | 200.0 | 160.0 | 26.0 | 207.5 | 110.0 | 150.0 |
| P315F30SR1 | 120.0 | 160.0 | 85.0 | 22.0 | 123.5 | 60.0 | 120.0 |
| P400F14 | 155.0 | 300.0 | 115.0 | 25.0 | 168.0 | 70.0 | 120.0 |
| P400F15 | 200.0 | 300.0 | 160.0 | 31.0 | 222.5 | 110.0 | 170.0 |
| P500F8 | 155.0 | 400.0 | 120.0 | 26.0 | 217.3 | 110.0 | 150.0 |
Catalogue